Debrecen, Belváros, Lakás, tégla lakás
Ingatlan adatai
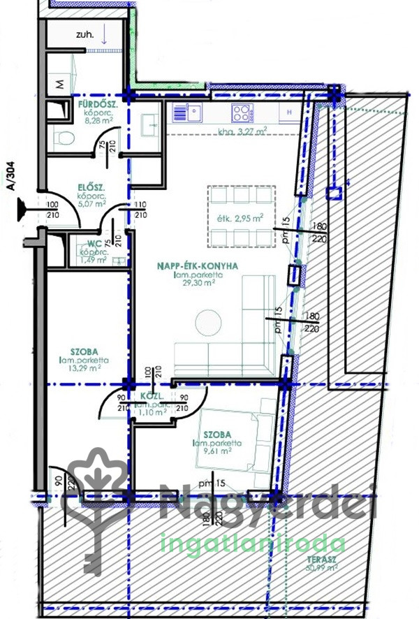
Ingatlan leírása
Debrecen belvárosának csendes részén új építésű, nagy teraszos lakás eladó! Ebben a modern társasházban minden az Ön kényelmét szolgálja. Az ingatlan DÉL-KELETI fekvésű, 68,18 nm-es, amerikai konyhás nappalival, 2 hálószobával, fürdőszobával, külön WC-vel kerül kialakításra. A lakáshoz impozáns méretű, 51 nm-es terasz tartozik. A parkolási gondokat is elfelejtheti, hiszen a pinceszinten kiosztott parkolóhelyek védik gépjárműveit az időjárás viszontagságaitól. Az épület fűtése távhővel és egyedi mérőkkel van megoldva, így a személyre szabott és GAZDASÁGOS energiafogyasztás garantált. Emellett a lakásban korszerű HŰTŐ-FŰTŐ levegős hőszivattyús berendezés kerül beépítésre, amely egész évben biztosítja a kellemes hőmérsékletet. Ez az ingatlan különösen vonzó lehet azok számára, akik OTTHONTEREMTÉS vagy BEFEKTETÉS céljából keresnek prémium minőségű, minden igényt kielégítő lakást. Ne hagyja ki ezt a páratlan lehetőséget, hogy egy modern környezetben, színvonalas infrastruktúrával rendelkező társasházban találja meg álomotthonát. Referenciaszám: # 119416
Ingatlan jellemzői
Nincs információ
 
                        