Email: iroda@nagyerdeiingatlan.hu
VÁRJUK HÍVÁSÁT
+36 706161534
  • Kezdőoldal
  • Ingatlanok 
    • Eladó
    • Kiadó
  • Szolgáltatásaink 
    • Értékesítés
    • Bérbeadás
    • Ingatlankezelés
  • Blog
  • Karrier
  • Rólunk
Ingatlanok Téglás, Lakás, tégla lakás

Téglás, Lakás, tégla lakás

  • Téglás, Lakás, tégla lakás
  • Téglás, Lakás, tégla lakás
  • Téglás, Lakás, tégla lakás
  • Téglás, Lakás, tégla lakás

Ingatlan adatai

Referencia szám 125906 Fő típus Lakás Típus Tégla lakás Elhelyezkedés Téglás Alapterület 49 m2 Szobák száma 2 Emelet 3. emelet Ár 49 900 000 HUF Eladó/Kiadó Eladó
 

Ingatlan leírása

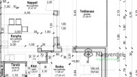
PENTHOUSE LAKÁS TETŐTERASSZAL – KIVÁLÓ ÁRON, Téglás városközpontban 49 m² lakótér + 21 m² saját tetőterasz Ár: 49,9 millió Ft / db Összesen 2 db lakás elérhető Eladó modern penthouse lakások, amelyek ideálisak saját otthonnak vagy befektetésnek. Főbb jellemzők: 49 m² lakótér 21 m² privát tetőterasz Új építésű társasház Várható átadás: 2026 év vége Előnyök: Nincs felső szomszéd Tágas, panorámás tetőterasz Világos, jól kihasznált terek Prémium minőségű burkolatok A+ energetikai besorolás Alakítható belső elrendezés Udvari parkolási lehetőség Elhelyezkedés: Téglás központjában, minden fontos szolgáltatás közelében. Korlátozott darabszám, érdemes mielőbb dönteni. Ref: 125906

Ingatlan jellemzői

Nincs információ

Az ingatlan elhelyezkedése

Kapcsolattartó

Photo from
  nano34234234@gmail.com

Hasonló találatok

  • Tégla lakás

    Debrecen, Belváros

    Debrecen Belvárosában, a Nagyállomás mellett, rendezett társasház 3. emeletén, 47 m²-es, nappali+ 1 hálószobás, loggiás hangulatos lakás ELADÓ. Jellemzői: ...

    47 m2
    Szobák: 2
    125383
    49 700 000 HUF
    Részletek »
  • Tégla lakás

    Téglás

    KIEMELT AJÁNLAT TÉGLÁS BELVÁROSÁBAN – SAJÁT KERTTEL! Eladó egy földszinti, kertkapcsolatos új építésű lakás Téglás központjában – ideális választás...

    44 m2
    Szobák: 0+1
    125884
    49 900 000 HUF
    Részletek »
  • Tégla lakás

    Debrecen, Belváros

    Debrecen Belvárosában, a Nagyállomás mellett, rendezett társasház 3. emeletén, 47 m²-es, nappali+ 1 hálószobás, loggiás hangulatos lakás ELADÓ. Jellemzői: ...

    47 m2
    Szobák: 2
    125865
    49 700 000 HUF
    Részletek »
  • Tégla lakás

    Debrecen, Libakert

    Debrecen közkedvelt részén, az Egyetem sugárúton eladó egy 4. emeleti, lift nélküli társasházban található lakás, amely kiváló lehetőség mind saját célra...

    43 m2
    Szobák: 2
    125792
    49 500 000 HUF
    Részletek »
  • Panel lakás

    Debrecen, Dobozikert

    Fényesudvar 1. szám alatti, panelprogram keretén belül felújított szép kis lakás keresi új tulajdonosát. Az ingatlan per és teher mentes, azonnal költözhető...

    36 m2
    Szobák: 2
    125901
    46 000 000 HUF
    Részletek »

Ingatlan keresése

Szobák száma
Ár
Alapterület
Keresés

Lépj Kapcsolatba velünk!

További információért írj Nekünk üzenetet, vagy keress Minket telefonon.

+36 706161534

 

Kapcsolat

  • Telefon: +36 706161534
  • WhatsApp: +36 706161534
  • Viber: +36 706161534
  •  4032 Debrecen, Komlóssy út 47. fszt.
  •  iroda@nagyerdeiingatlan.hu
© Copyright 2014 - 2026 by Greatforest Real Estate  -  Adatkezelési tájékoztató
Powered By: Nano.
Greatforest Real Estate